
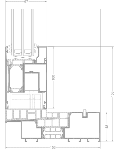
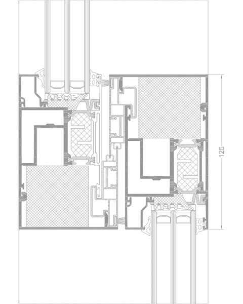
Hrúbka zárubne
153 - 239 mm
Hrúbka krídla
67 mm
Hrúbka zasklenia
14 - 52 mm
Priepustnosť vzduchu
Trieda 4
Vodotesnosť
Trieda 9A (600 Pa)
Odolnosť voči zaťaženiu vetrom
Trieda C4 (1600 Pa)
Použitie:
-
posuvné alebo zdvižno-posuvné konštrukcie;
-
systém spĺňa očakávania najnovších požiadaviek v oblasti tepelnej izolácie, estetiky a bezpečnosti;
-
dostupné voľby systému: UG – verzia s nízkym prahom, UG – riešenie s 90° uhlom
-
posuvné konštrukcie UG sú určené na použitie v obytných budovách, predovšetkým v domoch, ako aj vo verejných objektoch;
-
konštrukcie s veľkorozmernými jazdnými krídlami – maximálne rozmery konštrukcie: výška krídla do 3300 mm a šírka krídla do 3500mm.
-
stavba konštrukcie: zárubňa – 3, 5 a 7-komorový systém;
-
možné kombinácie 2, 3 a 4-dielne na základe systému s dvoma koľajnicami;
-
možnosť použitia výplní rôznych typov (dvojsklo, trojsklo);
-
systém umožňuje vytvárať konštrukcie s veľkými zaskleniami, čo zaručuje perfektné osvetlenie interiérov, a tiež uľahčuje ich aranžovanie, pričom si konštrukcia zachováva svoju stabilitu, funkcionalitu a ľahkosť.
-
systém je kompatibilný s inými systémami Aliplast;
-
široký výber farieb– vzorkovník RAL, štrukturálne farby, imitácie dreva Aliplast Wood Colour Effect, elox, dvojfarebné;


